22 april 2025


Vandaag was het dan eindelijk zover en zijn de laatste heipalen de grond in gegaan! Hier hebben we natuurlijk een bijzonder momentje van gemaakt! Met een bakkie en een gebakkie. Zo mochten Anseline en Conny symbolische de paal slaan! Weer een stapje verder in de bouw! Iedereen bedankt voor jullie aanwezigheid!






4 april 2025


De maand april is eindelijk aangebroken. Dat betekend dat we over een paar weekjes beginnen met de start van de woning.  De eerste kleine voorbereidingen zijn van start gegaan het uitzetten van de woning doormiddel van paaltjes en lint.







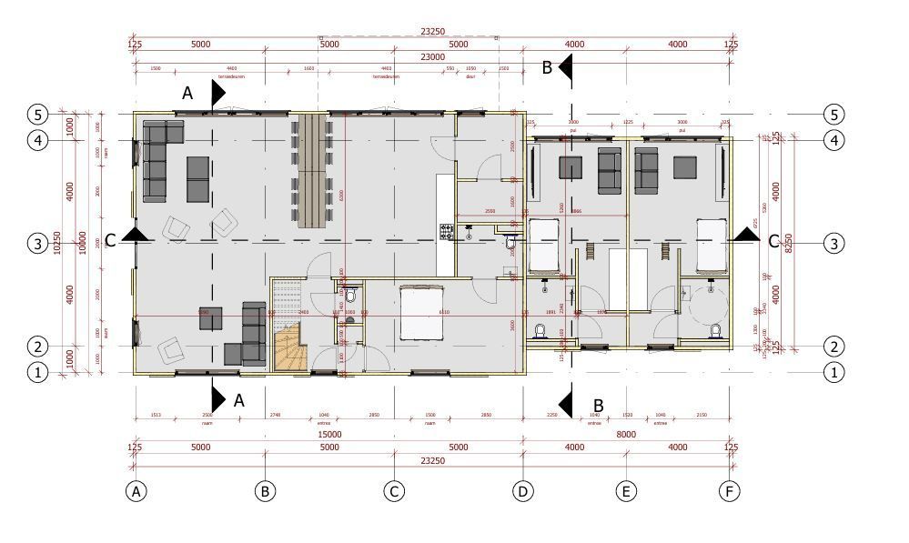
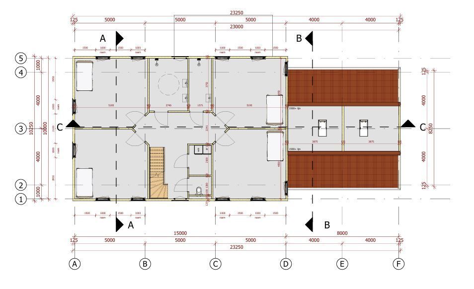
Nieuwbouw Woonzorgcomplex


Start bouw: mei 2025

Oplevering: september 2025